Nowy dom parterowy z antresolą.
Tarnów Pokaż na mapie ›
Odświeżone: Wtorek, 07 Październik, 2025 11:08
1 000 000 zł
5319 zł/m2
Szczegóły ogłoszenia
- Kategoria: Domy / Sprzedaż
- Powierzchnia:188 m2
- Liczba pokoi:4 pokoje
- Pow. działki:1200 m2
- Rynek:Pierwotny
- Rok budowy:2025
- Sprzedaż:Pośrednik
- Cena: 1 000 000 zł / 5319 zł/m2
Opis oferty
Nowoczesny dom parterowy z antresolą – nowa inwestycja na granicyTarnowa i Woli Rzędzińskiej.
Rozpoczynamy budowę wyjątkowego, parterowego domu jednorodzinnego z
antresolą, zlokalizowanego na malowniczej granicy Tarnowa i Woli
Rzędzińskiej. Inwestycja realizowana będzie na jednej z trzech
dostępnych, w pełni uzbrojonych działek o powierzchni od 10 do 12
arów – wybór należy do Ciebie.
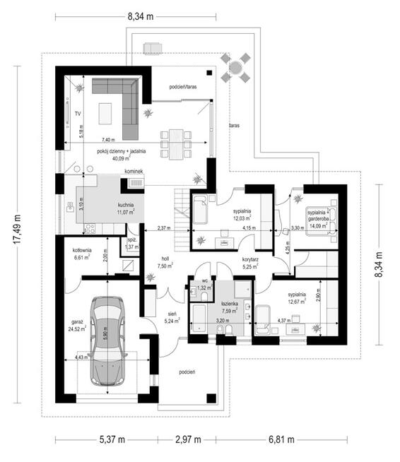
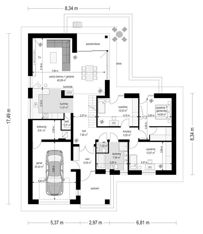
Powierzchnia domu (z garażem): 149,36 m²
Powierzchnia całkowita z antresolą i strychem: 188,80 m²
Czas realizacji: 12–18 miesięcy od zakupu działki (akt notarialny)
Dom został zaprojektowany z myślą o wygodzie i funkcjonalnym
podziale przestrzeni.
Składa się z trzech wyraźnie wydzielonych stref:
I. Strefa gospodarcza: Garaż jednostanowiskowy o powierzchni 24,52
m²
Praktyczna kotłownia – 6,61 m²
Strych nad garażem – aż 28 m² – idealny na przechowywanie
rzeczy sezonowych
II. Strefa dzienna – serce domu: Przestronny salon z jadalnią –
40,09 m² – z wyjściem na ogród
Nowoczesna, otwarta kuchnia – 11,07 m²
Stylowy kominek, który łączy przestrzeń salonu i kuchni
Antresola nad salonem – idealna na domową bibliotekę, gabinet lub
strefę relaksu
III. Strefa prywatna – komfort na co dzień:
Trzy funkcjonalne sypialnie:
Główna z garderobą – 14,09 m²
Dwie z szafami wnękowymi – 12,03 m² i 12,67 m²
Nowoczesna łazienka – 7,59 m²
Oddzielne WC – 1,32 m²
Dodatkowy strych nad częścią sypialnianą – dostęp z antresoli
Wysoki standard deweloperski – jakość, którą poczujesz:
Technologia: bloczki Ytong, solidna blachodachówka
Ogrzewanie podłogowe w całym domu
Piec gazowy dwufunkcyjny
Klimatyzacja w każdym pokoju
Okna trzyszybowe plus rolety antywłamaniowe Drzwi wejściowe
antywłamaniowe, brama garażowa
Wysokiej klasy tynki i gładzie
Dodatkowe atuty: Działka wyrównana i przygotowana pod układanie
kostki brukowej
Możliwość wykonania prac dodatkowych, takich jak:
Kompleksowe ogrodzenie posesji
Instalacja rekuperacji, paneli fotowoltaicznych
Montaż odkurzacza centralnego
Układanie kostki brukowej
Zakres prac dodatkowych ustalany indywidualnie z deweloperem.
Sprawdzona lokalizacja – zrealizowana z sukcesem! Zapraszamy do
obejrzenia domu pokazowego, który odzwierciedla jakość i
funkcjonalność naszej inwestycji.
Zainteresowanych zapraszamy do kontaktu:
Jerzy – 534 - pokaż numer telefonu -
Magdalena – 534 - pokaż numer telefonu -
Sprawdź zainteresowanie tym ogłoszeniem
Wyświetlenia
Data dodania
Ostatnio widziany
Obserwujących
Wysłane zapytania
Odsłony telefonu
Powiadom o podobnych ogłoszeniach
Lokalizacja: Tarnów
Kategoria: Nieruchomości » Domy » Sprzedaż
Cena: od 850000 zł do 1150000 zł Powierzchnia : od 160 m2 do 216 m2
Chcę otrzymywać powiadomienia o nowych ofertach
KNC Nieruchomości Sp.zo.o.
Konto firmowe
Na Lento.pl od 04 kwi 2024
Strona użytkownika
- Wypromuj ogłoszenie
- Zgłoś naruszenie
- Drukuj ulotkę
- Edytuj/usuń ogłoszenie
- Udostępnij ogłoszenie
- Dodaj na Facebook































